Auftraggeber: Stadtwerke Bad Tölz GmbH
Architekten: L + S Architekten GmbH
Planung: ab 07 / 2021 | Leistungsphase 2 abgeschlossen
Kenndaten:
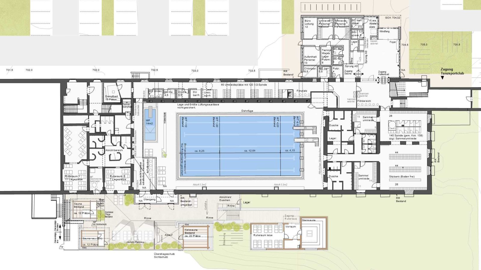
Wasserflächen Hallenbad ca. 326,5 m2
Fläche | BGF ca. 3.600 m2
Volumen | BRI ca. 18.600m3
Das derzeitige Hallenbad befindet sich in einer 1937 durch die Nationalsozialisten erbauten Junkerschule. Nach Kriegsende wurde der Gebäudekomplex in Flint-Kaserne umbenannt und bis zu ihrem Abzug im Jahr 1991 von der US-Armee als Basis genutzt. Mit Übergang des Areals in den Besitz der Stadt Bad Tölz erfolgten in weiten Teilen Umbau- und Erweiterungsmaßnahmen des Gesamtanlage.
Die ursprüngliche Aufgabenstellung der Planung war eine umfangreiche bauliche Erweiterung und Attraktivierung des Hallenbades als Freizeit- und Familienbad mit einer großen Sauna-/Wellnesslandschaft. Diese wurde jedoch im Zuge des weiteren Planungsverlaufs im Umfang reduziert und umfasst nun eine bauliche Erweiterung des Zugangsbereichs und dieAttraktivierung des bestehenden Hallenbades und der Saunalandschaft, sowie notwendige Sanierungsmaßnahmen der Haus- und Badewassertechnik.Der Entwurf sieht vor die bestehende Badehalle um ein Kleinkindbecken mit Rutsche zu ergänzen und den vorhandenen Umkleidebereich zu modernisieren und umzustrukturieren. Die Badewasser- und Lüftungstechnik des Bestandes soll in Teibereichen erneuert und auf die neue Entwurfskonzepotion angepasst werden.
Die Saunalandschaft erhält einen eigenen Umkleidebereich mit ergänzenden barrierefrei zugänglichen Sanitäreinrichtungen, sowie einem attraktiven Fönbereich. Im Außenbereich entsteht durch Umstrukturierung und Erweiterung der bestehenden Saunaterrasse eine angenehme Aufenthaltsatmosphäre mit Liegeflächen und Bewegungszonen. Das Saunanagebot wird durch eine große Aufgußsauna mit angrenzendem Ruhebereich und Erlebnisduschen erweitert.
Im Rahmen umfangreicher Bestandsaufnahmen und Bewertungen wurde ein Maßnahmenkatalog für eine langfristige nachhaltige Weiternutzung der Gesamtanlage erarbeitet.
Projektbeteiligte | Auswahl:
ELT: Schuhmacher & André GmbH & Co. KG
HLS und Badewassertechnik: L & P Beratende Ingenieure GmbH
Tragwerksplanung: ISP Scholz Beratende Ingenieure AG
Fotos: L + S Architekten GmbH
Um Ihnen ein optimales Erlebnis zu bieten, verwenden wir Technologien wie Cookies, um Geräteinformationen zu speichern und/oder darauf zuzugreifen. Wenn Sie diesen Technologien zustimmen, können wir Daten wie das Surfverhalten oder eindeutige IDs auf dieser Website verarbeiten. Wenn Sie ihre Zustimmung nicht erteilen oder zurückziehen, können bestimmte Merkmale und Funktionen beeinträchtigt werden.