Auftraggeber: GWG Projektentwicklung GmbH über Constrata Ingenieurgesellschaft mbH
Machbarkeitsstudie: 10 / 2021 – 06 / 2022
Erstellung TÜ-Ausschreibung bis 10/ 2022
Leistungsphasen: 0 und 6 | in Teilen
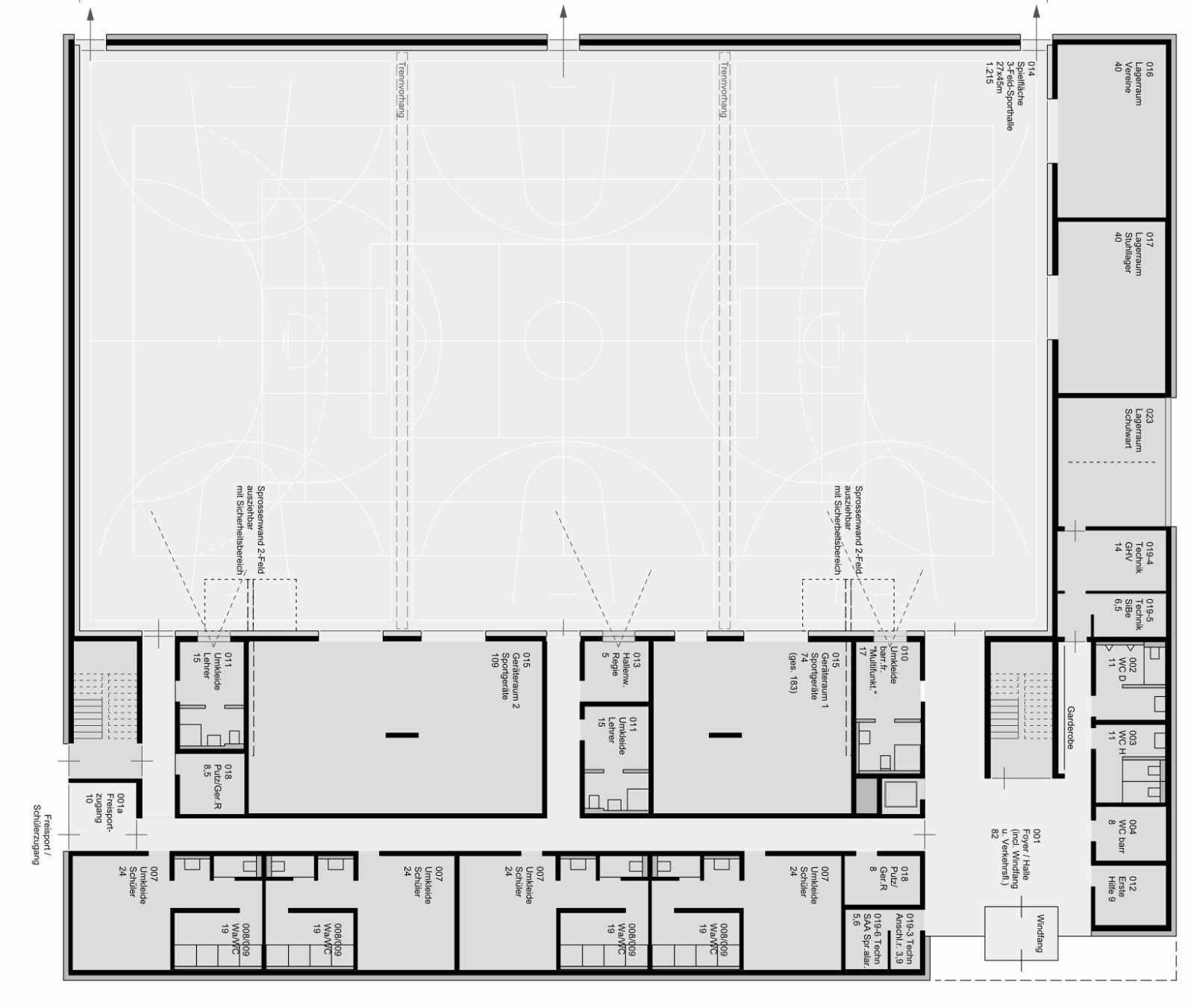
Aufgabenstellung ist die Erstellung einer Machbarbarkeitsuntersuchung mit Flächenprüfung für den Neubau einer Dreifach-Sporthalle auf dem Gelände der Grundschule Ummeln Bielefeld. Grundlage für die Machbarkeitsuntersuchung ist ein mit Nutzern und Vereinen vorabgestimmtes Raumprogramm für den Sporthallen Neubau als Dreifeld-Sporthalle mit Tribüne für 199 Personen. Vorgabe ist weiterhin, dass untersucht werden soll, inwiefern ein Sporthallen- Neubau unter der Voraussetzung möglich ist, dass die vorhandene Sporthalle bis zur Fertigstellung des Neubaus funktionsfähig erhalten bleibt.
Im Rahmen der Machbarkeitsstudie konnte anhand von Mustergrundrissen belegt werden, dass eine praktikable und gut nutzbare Umsetzung der Flächenvorgaben des Raumprogramms unter der Voraussetzung des Erhalts der vorhandenen Bestandssporthalle grundsätzlich möglich erscheint.
Im Anschluss wurde von L+S Architekten die Funktionale Leistungsbeschreibung (TÜ-Ausschreibung) für den Hochbau erstellt.
Um Ihnen ein optimales Erlebnis zu bieten, verwenden wir Technologien wie Cookies, um Geräteinformationen zu speichern und/oder darauf zuzugreifen. Wenn Sie diesen Technologien zustimmen, können wir Daten wie das Surfverhalten oder eindeutige IDs auf dieser Website verarbeiten. Wenn Sie ihre Zustimmung nicht erteilen oder zurückziehen, können bestimmte Merkmale und Funktionen beeinträchtigt werden.