Bauherr: Bundesrepublik Österreich vertr. d. Bundesministerium für Unterricht, Kunst und Kultur (BMUKK) vertr. d. Stadtschulrat für Wien
Architekten: L + S Architekten GmbH
Wettbewerb: 12 / 2014 (3. Preis)
Fläche | BGF: 7.900 m2 Neubau + 5.830 m2 Bestand
Volumen | BRI: 30.760 m3 Neubau + 21.800 m3 Bestand
Baukosten: ca. 11.500.000,- EUR (Vorgabe Auslobung KG 1 – 4 und 6 lt. ÖNORM B 1801-1)
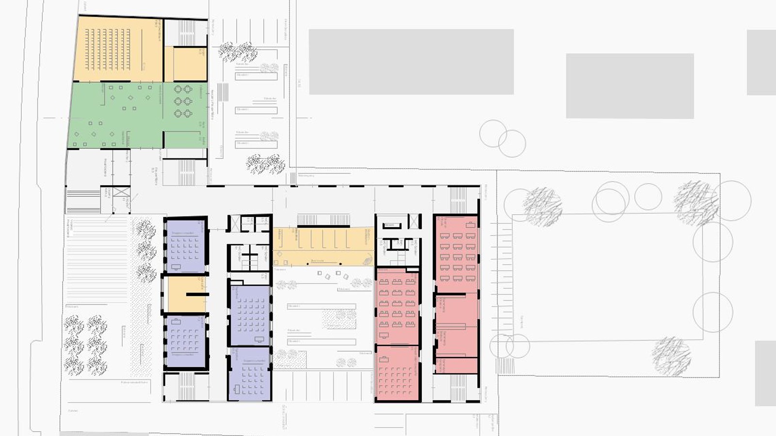
Entwurfsbeschreibung: Aufgabenstellung des Wettbewerbes war die grundlegende Neustrukturierung und Erweiterung des Raum- und Funktionsangebotes für das International Business College (IBC), die Bundeshandelsakademie und die Bundeshandelsschule (BHAK und BHAS) am Standort Hetzendorferstrasse in Wien.
Eine sinnvolle Integration der variierenden Raumgrößen und Flächenzuschnitte des Raumprogramms in den zu erhaltenden Baubestand und komplexe Anforderungen an die Funktionsabläufe stellten schwierig zu lösende Herausforderungen dar. Weiter galt es ein erhebliches Neubauvolumen, welches unter anderem auch eine Sporthalle und einen Gymnastiksaal beinhaltet, auf der geringen innerstädtischen Grundstücksfläche sinnvoll und unter Einhaltung des Baurechts zu integrieren.
Der Entwurf fasst die beiden zu erhaltenden Bestandsgebäude und die ergänzenden Neubauteile funktional und gestalterisch zusammen und lässt einen als Einheit wahrnehmbaren Schulkomplex entstehen.
Die beiden durch einen Brückentrakt ergänzten Bestandsgebäude werden über eine großzügige Flur- und Kommunikationsspange an das Eingangsgebäude angeschlossen und erhalten durch die Baukörpersituierung einen Innenhof, der die daran angeschlossenen Aufenthaltsbereiche angenehm aufwertet.
Der gesamte Gebäudekomplex erhält eine einheitliche Baukörper- und Fassadensprache, die in einem spannungsvollen Kontext zur fein gegliederten Fassade des Gründungszeitgebäudes steht.
Auszug aus dem Preisgerichtsprotokoll:
Städtebaulich wird die Zäsur zwischen dem neu errichteten BT 3 und dem Altbestand in der ausgebildeten Dachlandschaft positiv gesehen. Die klar ausformulierte innere Wegeführung (Rundgang) wir als positiv bewertet. Der geplante Lehrer/-innen-Arbeits- und Aufenthaltsbereich ist großzügig geplant. Das Departementsystem ist gut ablesbar.
Wettbewerbsbeteiligte:
Visualisierung: Florian Smolka, München
Um Ihnen ein optimales Erlebnis zu bieten, verwenden wir Technologien wie Cookies, um Geräteinformationen zu speichern und/oder darauf zuzugreifen. Wenn Sie diesen Technologien zustimmen, können wir Daten wie das Surfverhalten oder eindeutige IDs auf dieser Website verarbeiten. Wenn Sie ihre Zustimmung nicht erteilen oder zurückziehen, können bestimmte Merkmale und Funktionen beeinträchtigt werden.